コンテンツへ
検索
詳細検索
クイックリンク
スタイル変更
未返信トピック
最近のトピック
検索
フォーラム
FAQ
AllanStyle-SUBSILVER
Black
Black DarkBlue
Black Green
Black Green2
Blue Turtle
Carbon
Digi
Digi DarkBlue
Digi Green
Digi Orange
Graphit
Latte
Multi-Design
PBWoW3
Pirate
ProsilverColor-blinds
Wild West
prosilver
prosilver Special Edition
ログイン
検索
ログイン
掲示板トップ
SDR関連資料
ADS-B
検索
現在時刻 - 2026年5月26日(火) 03:58
All times are
UTC+09:00
A380 が羽田に就航できない理由
ADS-B 受信に関わる資料
返信する
印刷ビュー
検索
詳細検索
1 件の記事 • ページ
1
/
1
mansyuu
管理人
記事:
95
登録日時:
2023年6月03日(土) 00:38
A380 が羽田に就航できない理由
引用する
投稿記事
by
mansyuu
»
2023年6月24日(土) 16:57
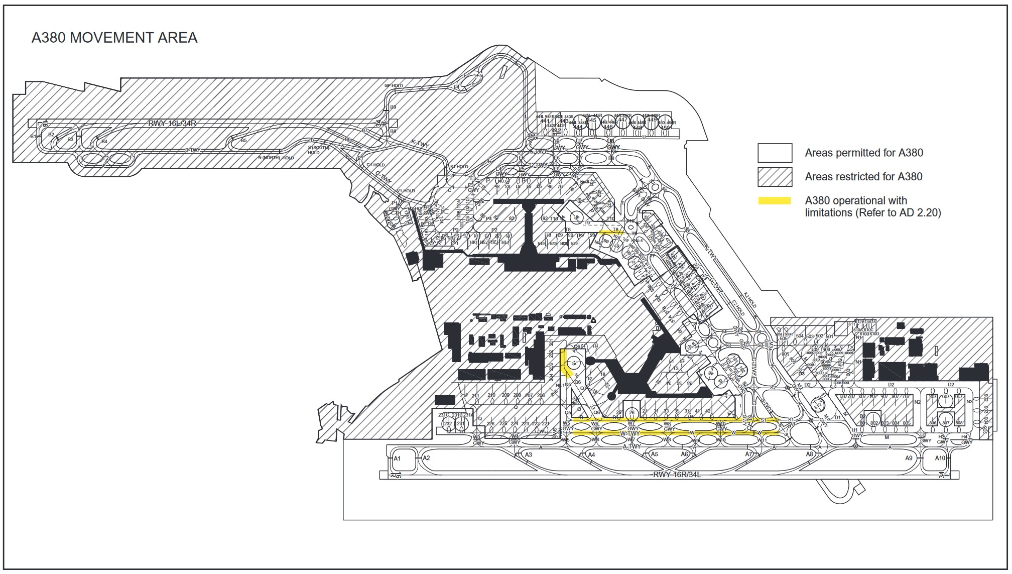
滑走路や誘導路の強度がA380の重量に対応していない。
誘導路の幅が狭い所も有りA380が自由に地上移動する事が出来ない。
重量の大きなA380による後方乱気流のため、後続機との間隔を今よりも
開けなければならないのでさばける便数が減ってしまう。
A380と後続機の間隔は今の倍の6海里取らなければならない。
こうした理由で羽田空港には就航できない。
成田に於いても4000m滑走路側しか使用できない。
ページトップ
返信する
印刷ビュー
1 件の記事 • ページ
1
/
1
“ADS-B”に戻る
掲示板トップ
All times are
UTC+09:00
掲示板の cookie を消去する